ЖК BUSOV HILL
ПЛОЩА
104.3 м²
ТЕРМІНИ
60 д.
КІМНАТ
2
БЮДЖЕТ
1150 $/м²
ЛОКАЦІЯ
Київ, вул. Буслівська
ПРО ПРОЄКТ:
Розлога квартира з пейзажними вікнами, яка розмежована на дві основні зони: кухня-вітальна та спальня. Сучасний дизайн з використанням декоративних матеріалів, а також різноманітними сценаріями освітлення. Основною складністю цього проєкту є не типове планування, створення ергономічних приміщень з неперпендекулярних стін.
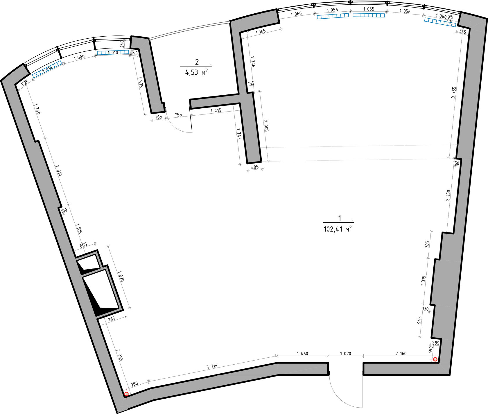
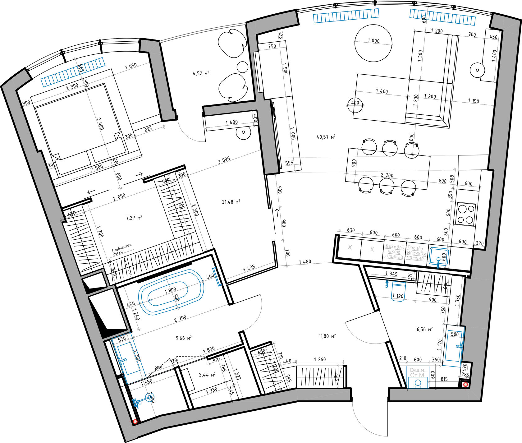
ПЛАНУВАННЯ
ПОДИВИМОСЯ НА ВІЗУАЛІЗАЦІЮ
КЛІЄНТ ОТРИМАВ:
• 3D візуалізації
• Перелік робіт по ремонту
• Повний список матеріалів

• Обмірний план приміщень
• Планувальне рішення
• План монтажу та демонтажу
60 днів
12.03.2024
• План розміщення сантехніки
• План розміщення меблів
• План оздоблення стін та підлоги
• План розміщення світильників
• План розмітки електрики
Також замовник отримав персональну знижку на закупівлю матеріалів та меблів
ТЕРМІНИ:
ПРОЄКТ БУЛО ЗДАНО:
Важливо
By Step Design дає вам додаткові знижки від постачальників матеріалів та меблів. Наша концепція - це заробіток тільки на створенні дизайн-проєктів, не секрет що постачальники співпрацюють з виконавцями робіт даючи додаткові знижки. Всю цю знижку у повному обсязі ми передаємо вам.
Ми цінуємо ваш час та комфорт, тому хочемо дізнатися, яким способом нам буде зручно з вами зв'язатися?
Зв'язатися з нами:
Ми в соцмережах:
Усі права захищенні
Копіювання матеріалів заборонено
© 2024 Bystep Design