ЖК ЕМОЦІЯ
ПЛОЩА
56 м²
ТЕРМІНИ
30 д.
КІМНАТ
2
БЮДЖЕТ
1150 $/м²
ЛОКАЦІЯ
Хотів, Київськая обл.
ПРО ПРОЄКТ:
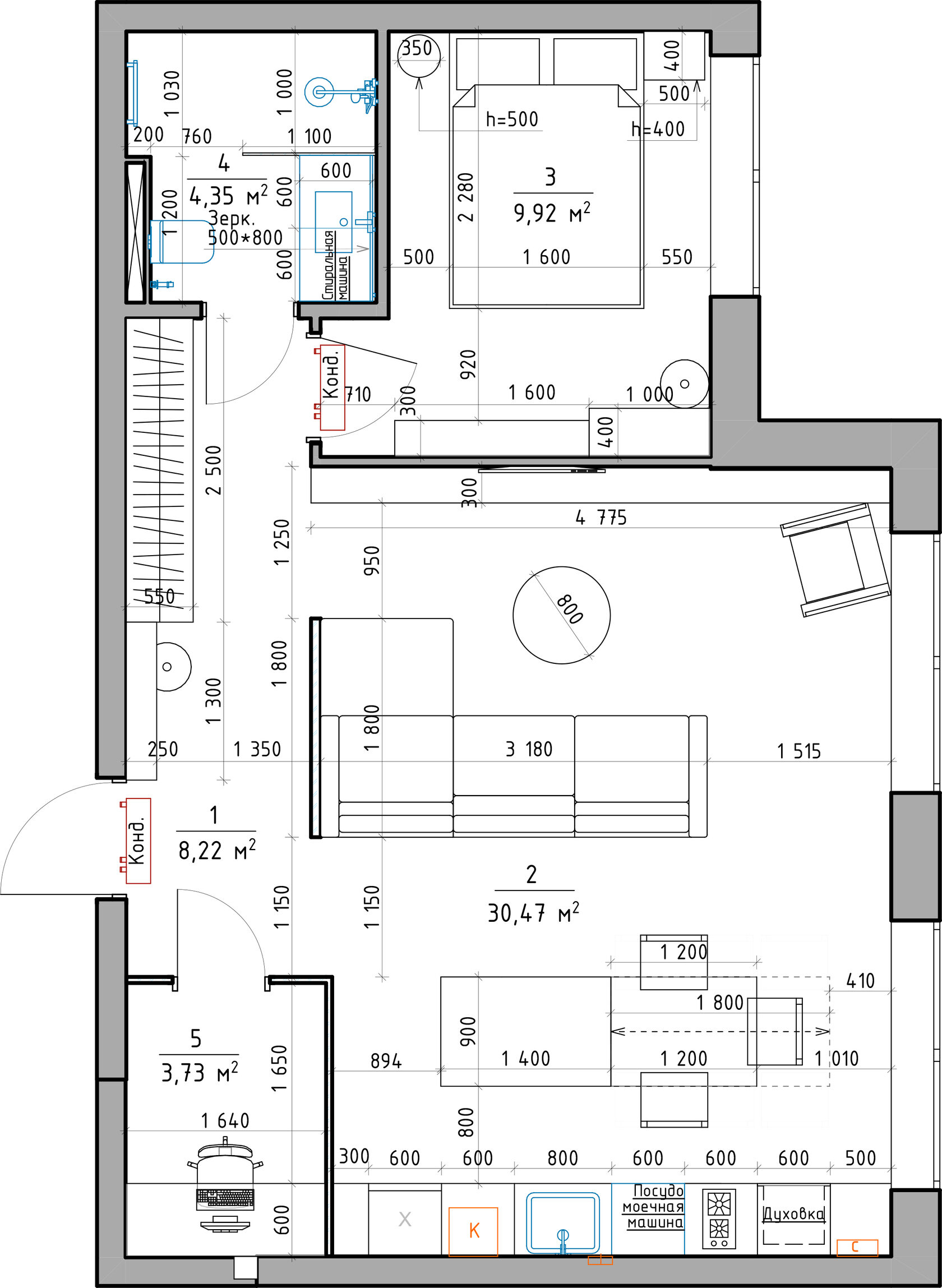
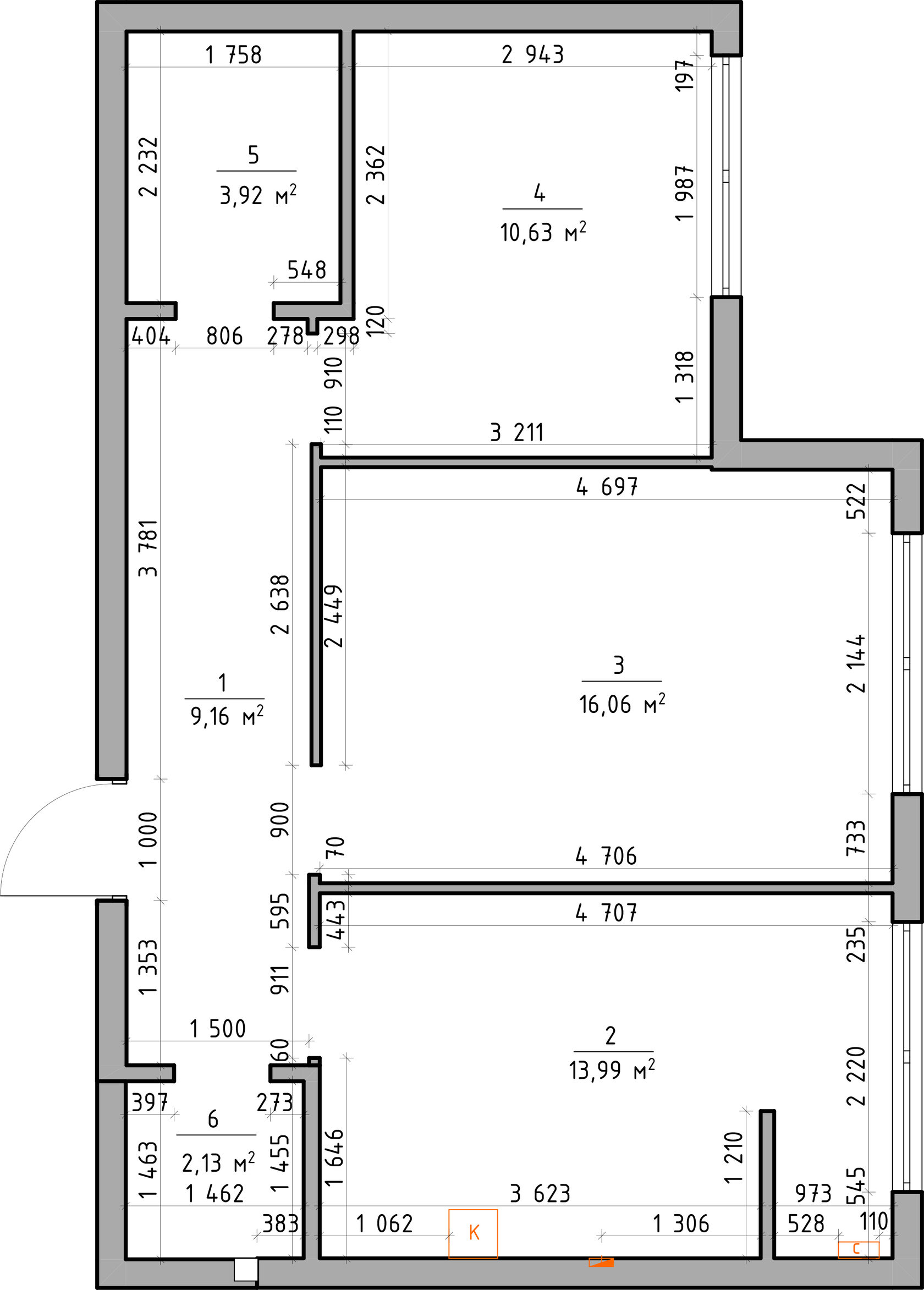
Ми демонтували перегородки між коридором, вітальнею, кухнею та коморою, а функціонально зонування виконали з перегородок зі склоблоків. Гіпсові панелі після монтажу розкриваються фарбою та лаком, що підвищує їхню міцність і довговічність. Світлопроникні конструкції зі склоблоків дозволили досягти максимально природного освітлення у всій квартирі.
ПЛАНУВАННЯ
ПОДИВИМОСЯ НА ВІЗУАЛІЗАЦІЮ
КЛІЄНТ ОТРИМАВ:
• 3D візуалізації
• Перелік робіт по ремонту
• Повний список матеріалів
• Обмірний план приміщень
• Планувальне рішення
• План монтажу та демонтажу
30 днів
06.07.2023
• План розміщення сантехніки
• План розміщення меблів
• План оздоблення стін та підлоги
• План розміщення світильників
• План розмітки електрики
Також замовник отримав персональну знижку на закупівлю матеріалів та меблів
ТЕРМІНИ:
ПРОЄКТ БУЛО ЗДАНО:
Важливо
By Step Design дає вам додаткові знижки від постачальників матеріалів та меблів. Наша концепція - це заробіток тільки на створенні дизайн-проєктів, не секрет що постачальники співпрацюють з виконавцями робіт даючи додаткові знижки. Всю цю знижку у повному обсязі ми передаємо вам.
Ми цінуємо ваш час та комфорт, тому хочемо дізнатися, яким способом нам буде зручно з вами зв'язатися?
Зв'язатися з нами:
Ми в соцмережах:
Усі права захищенні
Копіювання матеріалів заборонено
© 2024 Bystep Design