ЖК ФАЙНА ТАУН
ПЛОЩА
77,3 м²
ТЕРМІНИ
50 д.
КІМНАТ
3
БЮДЖЕТ
810 $/м²
ЛОКАЦІЯ
Київ, вул. Салютна
ПРО ПРОЄКТ:
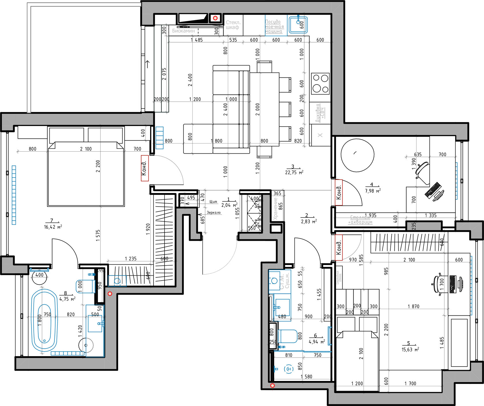
Квартира з виходом на власну видову терасу. Лісовий зелений колір у поєднанні з нейтральними натуральними відтінками створюють затишну атмосферу. Додатковий комфорт створює влаштований біокамін у вітальні.
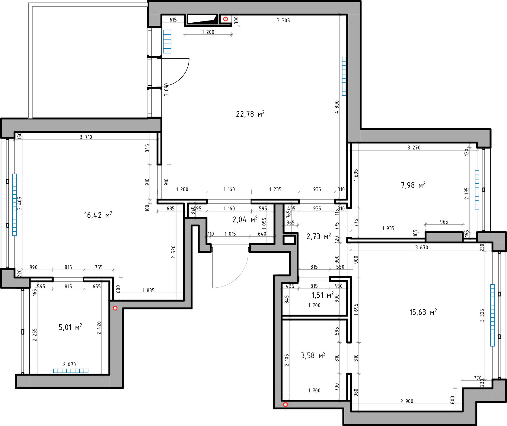
ПЛАНУВАННЯ
ПОДИВИМОСЯ НА ВІЗУАЛІЗАЦІЮ
КЛІЄНТ ОТРИМАВ:
• 3D візуалізації
• Перелік робіт по ремонту
• Повний список матеріалів

• Обмірний план приміщень
• Планувальне рішення
• План монтажу та демонтажу
50 днів
13.12.2024
• План розміщення сантехніки
• План розміщення меблів
• План оздоблення стін та підлоги
• План розміщення світильників
• План розмітки електрики
Також замовник отримав персональну знижку на закупівлю матеріалів та меблів
ТЕРМІНИ:
ПРОЄКТ БУЛО ЗДАНО:
Важливо
By Step Design дає вам додаткові знижки від постачальників матеріалів та меблів. Наша концепція - це заробіток тільки на створенні дизайн-проєктів, не секрет що постачальники співпрацюють з виконавцями робіт даючи додаткові знижки. Всю цю знижку у повному обсязі ми передаємо вам.
Ми цінуємо ваш час та комфорт, тому хочемо дізнатися, яким способом нам буде зручно з вами зв'язатися?
Зв'язатися з нами:
Ми в соцмережах:
Усі права захищенні
Копіювання матеріалів заборонено
© 2024 Bystep Design