ЖК ВАРШАВСЬКИЙ ПЛЮС 2
ПЛОЩА
62.2 м²
ТЕРМІНИ
35 д.
КІМНАТ
3
БЮДЖЕТ
760 $/м²
ЛОКАЦІЯ
Київ, просп. Правди
ПРО ПРОЄКТ:
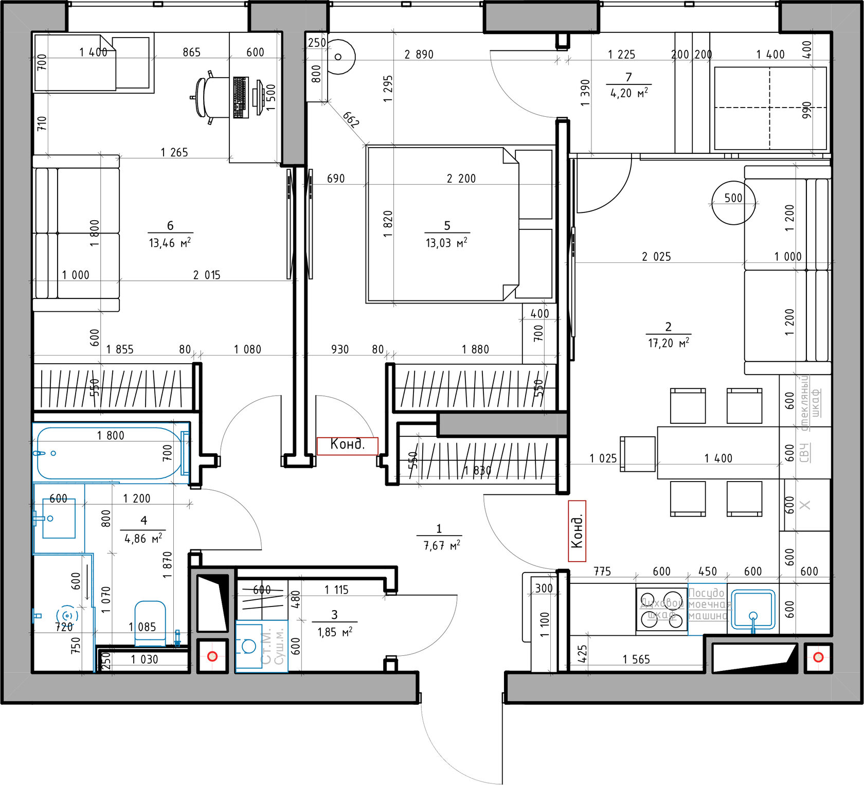
У цьому проєкті ми залишили лоджію від забудовника і розташували на ній затишну лаунж зону. Поєднання зелених відтінків і деревини створюють відчуття свіжості і легкості, як після прогулянки лісом. Універсальна вбиральня з окремо розміщеними у ній ванною та туалетом.
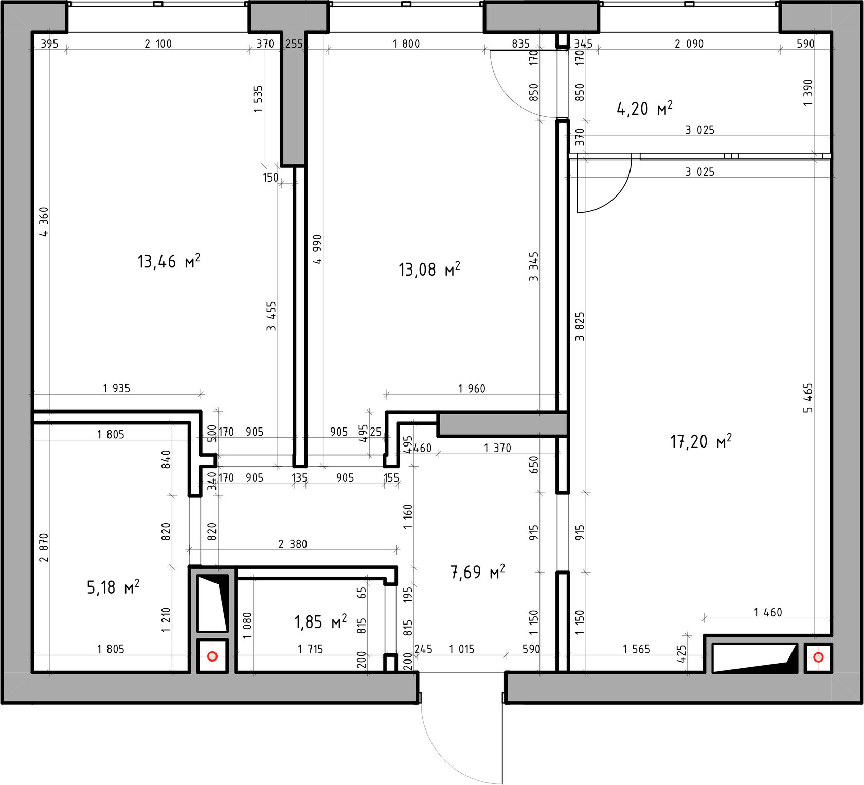
ПЛАНУВАННЯ
ПОДИВИМОСЯ НА ВІЗУАЛІЗАЦІЮ
КЛІЄНТ ОТРИМАВ:
• 3D візуалізації
• Перелік робіт по ремонту
• Повний список матеріалів

• Обмірний план приміщень
• Планувальне рішення
• План монтажу та демонтажу
35 днів
13.12.2023
• План розміщення сантехніки
• План розміщення меблів
• План оздоблення стін та підлоги
• План розміщення світильників
• План розмітки електрики
Також замовник отримав персональну знижку на закупівлю матеріалів та меблів
ТЕРМІНИ:
ПРОЄКТ БУЛО ЗДАНО:
Важливо
By Step Design дає вам додаткові знижки від постачальників матеріалів та меблів. Наша концепція - це заробіток тільки на створенні дизайн-проєктів, не секрет що постачальники співпрацюють з виконавцями робіт даючи додаткові знижки. Всю цю знижку у повному обсязі ми передаємо вам.
Ми цінуємо ваш час та комфорт, тому хочемо дізнатися, яким способом нам буде зручно з вами зв'язатися?
Зв'язатися з нами:
Ми в соцмережах:
Усі права захищенні
Копіювання матеріалів заборонено
© 2024 Bystep Design